Byt 2+1 s lodžií v Malenovicích - ulice Mlýnská

Typ: Byt

Dispozice: 2+1

Velikost: 54 m2

Dostupnost: 1.6.2026

Nájem:

12.200 Kč

Energie:

3.700 Kč

Celková cena:

15.900 Kč

Provize:

15.900 Kč

Parametry

Město: Zlín
Městská časť: Malenovice
Ulice: Mlýnská
Typ nemovitosti: Byt
Dispozice bytu: 2+1
Vybaveno nábytkem: ne
Plocha Plocha: 54 m2
K dispozici od K dispozici od: 1.6.2026
Lodžie Lodžie: 3 m2
Patro Patro: 1
Sklep/sklepní kóje Sklep/sklepní kóje: ano
Internet Internet: D (112 kWh/m2/rok)

Popis

Tento byt s lodžií nabízí příjemnou velikost, slunnou orientaci a lokalitu, která si dlouhodobě drží oblibu právě díky své dostupnosti i klidnějšímu charakteru. Oceníte skvělou dostupnost - pěšky, na kole, MHD, vlakem i rychlé napojení na dálnici.

Základní informace:

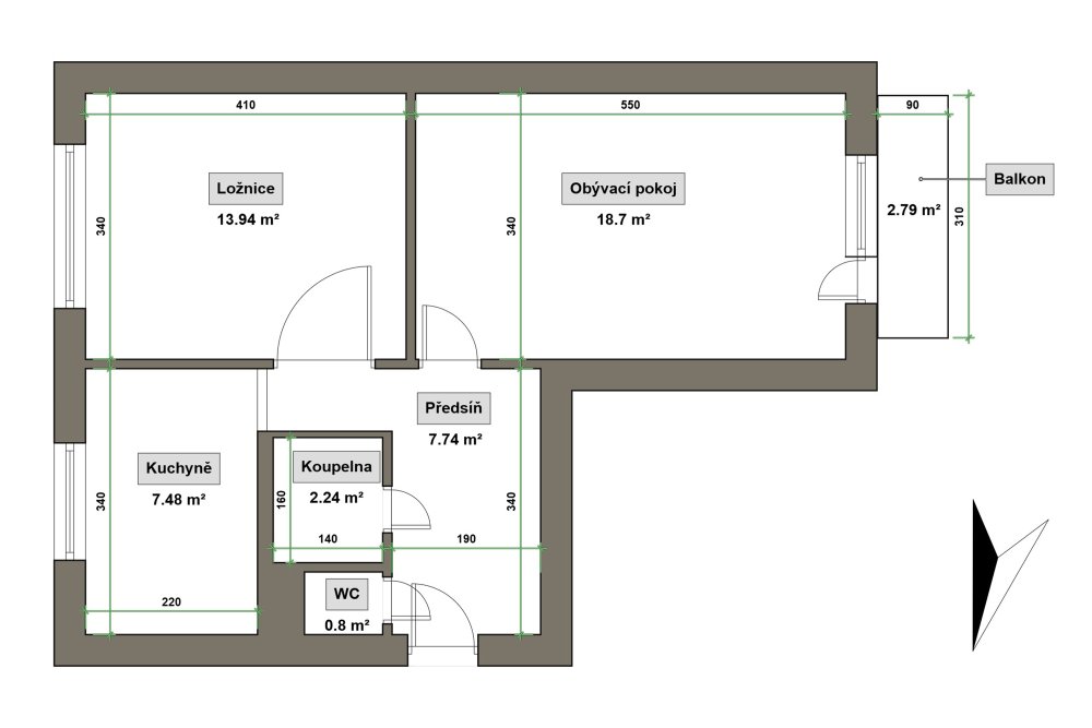
  • byt 2+1 s užitnou plochou 54 m²
  • umístění v 1. nadzemním podlaží
  • obývací pokoj s lodžií
  • prostorná ložnice
  • každý pokoj má samostatný vstup
  • koupelna se sprchovým koutem, samostatné WC
  • sklepní kóje výměře 2 m²

Vybavení:

  • byt se nabízí částečně zařízený
  • kuchyňská linka včetně sporáku
  • automatická pračka v koupelně
  • vestavěné šatní skříně na chodbě
  • TV stěna v obývacím pokoji

Nastěhování:

  • k dispozici od 1.6.2026
  • příjemné bydlení pro pár nebo jednotlivce
  • zvířecí spolubydlící nejsou bohužel povoleni 

Nájemné a poplatky:

  • měsíční nájemné: 12 200 Kč
  • zálohy na energie: 3 700 Kč měsíčně
  • Celkové měsíční náklady: 15 900 Kč + internet
  • možnost využít připojení kabelové TV a internetu: 528 Kč měsíčně
  • Vratná jistota (kauce): 15 900 Kč
  • Provize realitní kanceláře: 15 900 Kč
  • Pojištění domácnosti a odpovědnosti: cca 2 000 Kč ročně

Pro sjednání termínu prohlídky se na mě neváhejte obrátit.
Ráda se Vám budu věnovat.